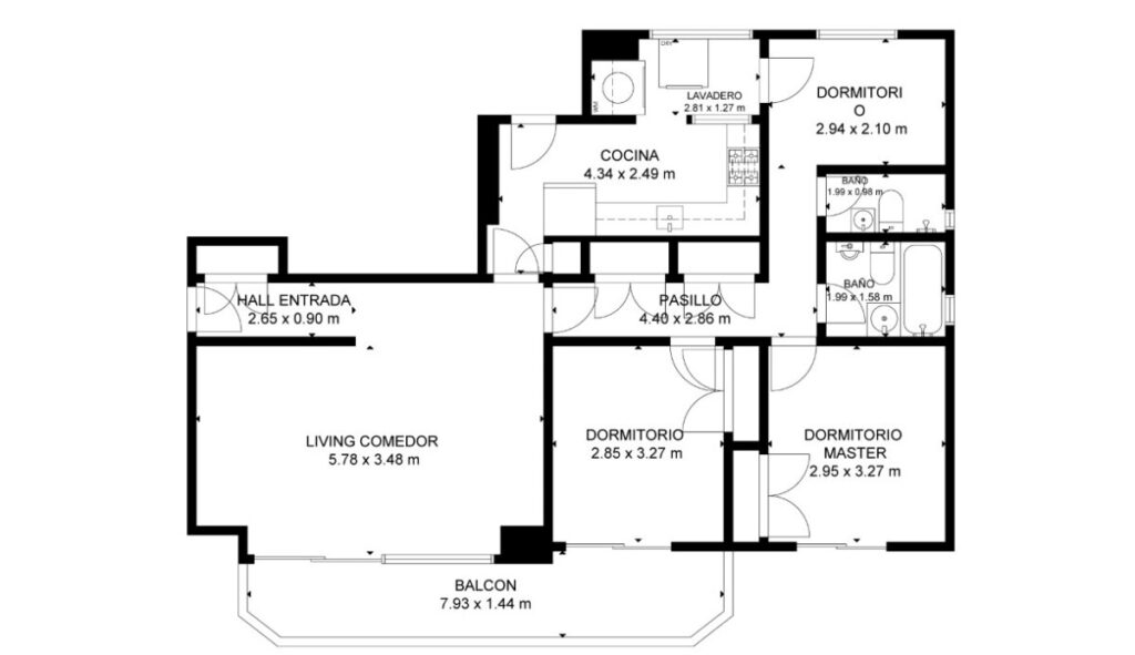
Muy buen departamento en edificio torre de 15 pisos. Optima ubicación a pasos de la estación de tren de Coghlan. Piso alto, muy luminoso. Hall. Living comedor a balcón con pisos de parquet. 3 dormitorios (2 con vista al río). 2 baños. Cocina y lavadero. Vista a verde y río.
Coghlan
Pedro Ignacio Rivera 3900
Ficha Técnica
(*)Las medidas y superficies indicadas son aproximadas y a solo efecto orientativo.
Características Generales
| Superficie Total | 83 m2 | |
| Superficie Cubierta | 80 m2 | |
| Superficie Balcón | 3 m2 | |
| Tipo de Departamento | 3 Dormitorios | |
| Cantidad de Dormitorios | 3 | |
| Cantidad de Baños | 2 | |
| Piso Nro | 8 | |
| Unidad letra | E | |
| Ubicación en Planta | Frente | |
| Estado Departamento | Bueno | |
| Luminosidad | 10 | |
| Orientación | NE |
Características Edificio
| Tipo de Departamento | 3 Dormitorios | |
| Antiguedad | 44 |
Ambientes y Dimensiones
| Living/Comedor | 7x3.5 a balcón | |
| Balcón | 3.5x1 | |
| Dormitorio #1 | 3.5x4 | |
| Dormitorio #2 | 3.5x3 | |
| Dormitorio #3 | 3x4 | |
| Cocina | Si | |
| Lavadero | Si |
Servicios
| Agua Caliente | Termotanque Individual |
Costos
| Expensas | 176239 | |
| Mes de Expensas | Septiembre | |
| ABL | 30000 |














