Lindísimo departamento al contrafrente con vista parisina. Palier privado. Hall. Living con chimenea y comedor. Escritorio. Pisos de parquet. Toilette. 2 dormitorios (1 en suite). Cocina y family room. Lavadero y dependencias de servicio. Baulera. Cochera espacio.
Recoleta
Gelly y Obes 2200
Ficha Técnica
(*)Las medidas y superficies indicadas son aproximadas y a solo efecto orientativo.
Características Generales
| Superficie Total | 169.37 m2 | |
| Superficie Cubierta | 163.69 m2 | |
| Otras Superficies | 5.68 m2 | |
| Tipo de Departamento | 2 Dormitorios c/Dependencia | |
| Cantidad de Dormitorios | 2 | |
| Cantidad de Baños | 2 | |
| Cochera | Sí | |
| Tipo de Cocheras | 1 espacio | |
| Piso Nro | 3 | |
| Unidad letra | 6 | |
| Ubicación en Planta | Contrafrente | |
| Estado Departamento | Muy Bueno | |
| Luminosidad | 7 |
Características Edificio
| Tipo de Departamento | 2 Dormitorios c/Dependencia |
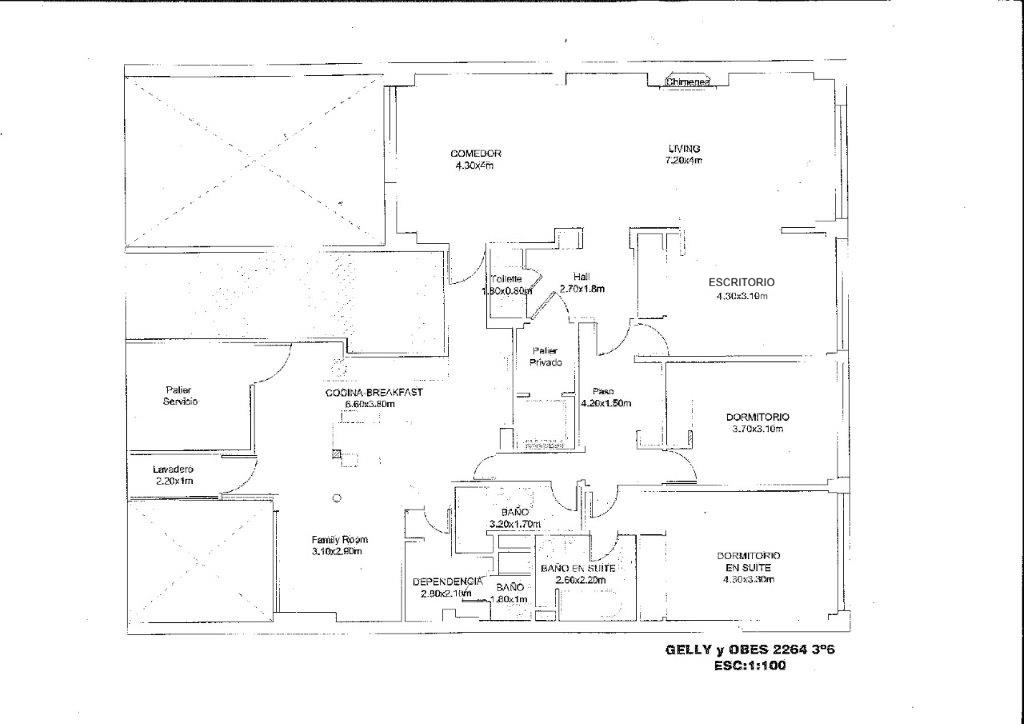
Ambientes y Dimensiones
| Palier | Privado | |
| Hall | 2.7x1.8 | |
| Living | 7.2x4 | |
| Comedor | 4x3.8 | |
| Escritorio | 4.3x3.1 | |
| Dormitorio #1 | 4.3x3.3 Suite | |
| Dormitorio #2 | 3.7x3.1 | |
| Toilette de Recepción | Si | |
| Cocina | 6.6x3.8 | |
| Dependencia de Servicio | Si | |
| Baño de Servicio | Si | |
| Lavadero | 2.2x1 | |
| Baulera | 6x2.3 | |
| Entrada de servicio | Si |
Servicios
| Agua Caliente | Caldera Central | |
| Tipo de Calefacción | Aire Caliente | |
| Aire Acondicionado | Equipo Individual |
Costos
| Expensas | 700000 | |
| ABL | 187000 |
























